Spółdzielnia Mieszkaniowa „Dębina” w Poznaniu ogłasza przetarg dwuetapowy na sprzedaż prawa do lokalu mieszkalnego położonego w Poznaniu, os. Dębina 8, lokal nr 32.
I. Przedmiot przetargu
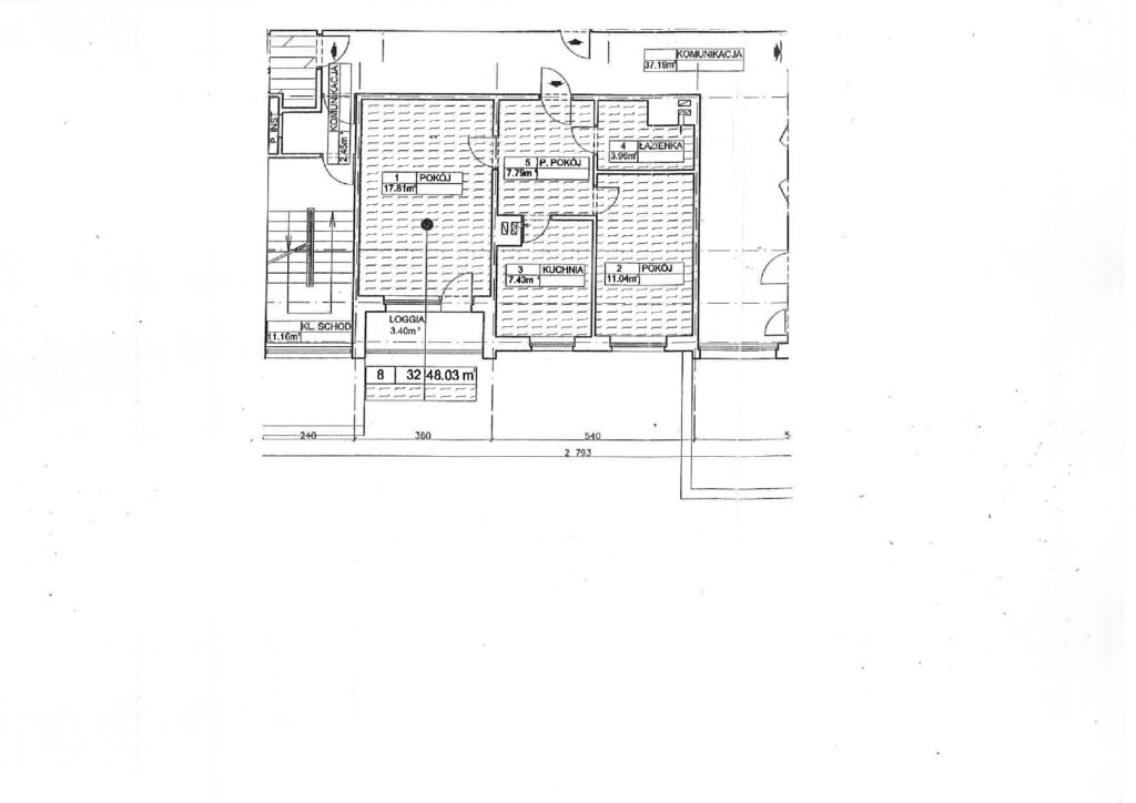
Lokal mieszkalny o powierzchni użytkowej 48,03 m², usytuowany na VII piętrze XI-piętrowego budynku mieszkalnego wielorodzinnego, obejmujący:
- 2 pokoje (11,04 m², 17,81 m²),
- kuchnię (7,43 m²),
- łazienkę (3,96 m²),
- korytarz (7,79 m²),
- loggie (3,40 m²),
- przynależną piwnicę (2,04 m²).
Lokal nie jest obciążony. Brak księgi wieczystej.
II. Cena wywoławcza
407 000, 00 zł brutto (słownie: czterysta siedem tysięcy złotych 00/100).
III. Warunki przetargu
Przetarg przeprowadzony zostanie w dwóch etapach:
ETAP 1 – składanie ofert pisemnych
- Termin składania ofert: do dnia 23.10.2025 r.
- Miejsce składania ofert: sekretariat Spółdzielni Mieszkaniowej „Dębina” w Poznaniu,
os. Dębina 106. - Oferta powinna być złożona w zamkniętej kopercie z dopiskiem: „Przetarg na nabycie prawa do lokalu mieszkalnego os. Dębina 8/32 w Poznaniu”.
- Dopuszcza się również przesłanie oferty listem poleconym za pośrednictwem Poczty Polskiej lub firmy kurierskiej (decyduje data wpływu do Spółdzielni).
ETAP 2 – licytacja
- Data i miejsce: 28.10.2025 r. o godz. 12:00 w Klubie Osiedlowym „Dębczak”,
os. Dębina 107 w Poznaniu. - Licytacja będzie prowadzona zgodnie z zasadami określonymi w Regulaminie przeprowadzania przetargów na ustanowienie odrębnej własności lokali odzyskanych
przez S. M. „Dębina” w Poznaniu z dnia 11.03.2019 r.
IV. Warunki uczestnictwa
Aby przystąpić do przetargu, oferent (osoba fizyczna lub prawna) zobowiązany jest do:
wpłaty wadium w wysokości 10% ceny wywoławczej (40.700 zł) na konto Spółdzielni:
PKO BP V O/Poznań, nr konta: 65 1020 4027 0000 1002 0035 4183.
Wpłata musi być zaksięgowana na koncie Spółdzielni najpóźniej na trzy dni przed przetargiem.
Złożenia kompletnej oferty pisemnej, zawierającej:
- Dane oferenta (imię, nazwisko/nazwa firmy, adres, PESEL/NIP, telefon),
- Wskazanie nieruchomości będącej przedmiotem oferty,
- Wypełniony formularz ofertowy z proponowaną ceną (nie niższą niż cena wywoławcza),
- Oświadczenia o:
- zapoznaniu się ze stanem faktycznym i prawnym przedmiotu przetargu,
- akceptacji zasad wyłonienia nabywcy,
- zapoznaniu się z regulaminem przetargu,
- zapoznaniu się ze stanem technicznym lokalu,
- Dowód wpłaty wadium,
- Podpis oferenta na wszystkich dokumentach,
- W przypadku osób prawnych – aktualny wypis z KRS lub zaświadczenie o wpisie do ewidencji działalności gospodarczej,
- W przypadku finansowania kredytem – promesa bankowa.
V. Warunki sprzedaży
- Wadium zwycięzcy przetargu zaliczane jest na poczet ceny nabycia.
- Wadium przepada w przypadku uchylenia się zwycięskiego oferenta od podpisania umowy.
- Cena nabycia musi zostać wpłacona w pełnej wysokości w terminie 90 dni od daty zakończenia licytacji.
- Lokal zostanie przekazany po dokonaniu pełnej wpłaty oraz dopełnieniu formalności prawnych.
- Z chwilą nabycia lokalu mieszkalnego, nabywca przejmuje meble, sprzęt AGD, gabaryty oraz inne przedmioty znajdujące się w lokalu. Nabywca zobowiązuje się do ich usunięcia na własny koszt
i we własnym zakresie, przy czym nie będzie dochodzić od Spółdzielni Mieszkaniowej „Dębina” żadnych roszczeń ani obciążeń związanych z tymi czynnościami.
VI. Dodatkowe informacje
Szczegółowe informacje na temat przetargu, regulamin oraz operat szacunkowy lokalu dostępne są:
– w biurze Spółdzielni Mieszkaniowej „Dębina” w Poznaniu, os. Dębina 106
– pod numerem telefonu: 61 832 04 56
– na stronie internetowej: www.smdebina.poznan.pl
– a tablicach ogłoszeń oraz profilu Facebook Spółdzielni
Spółdzielnia Mieszkaniowa „Dębina” zastrzega sobie prawo do odwołania przetargu na każdym jego etapie bez podania przyczyny, także podczas trwania samej licytacji.








